Detail Referenzen

Aspira — Dynamisches Wohlfühldesign

Aspira
Highlights

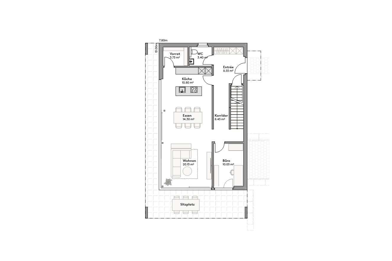
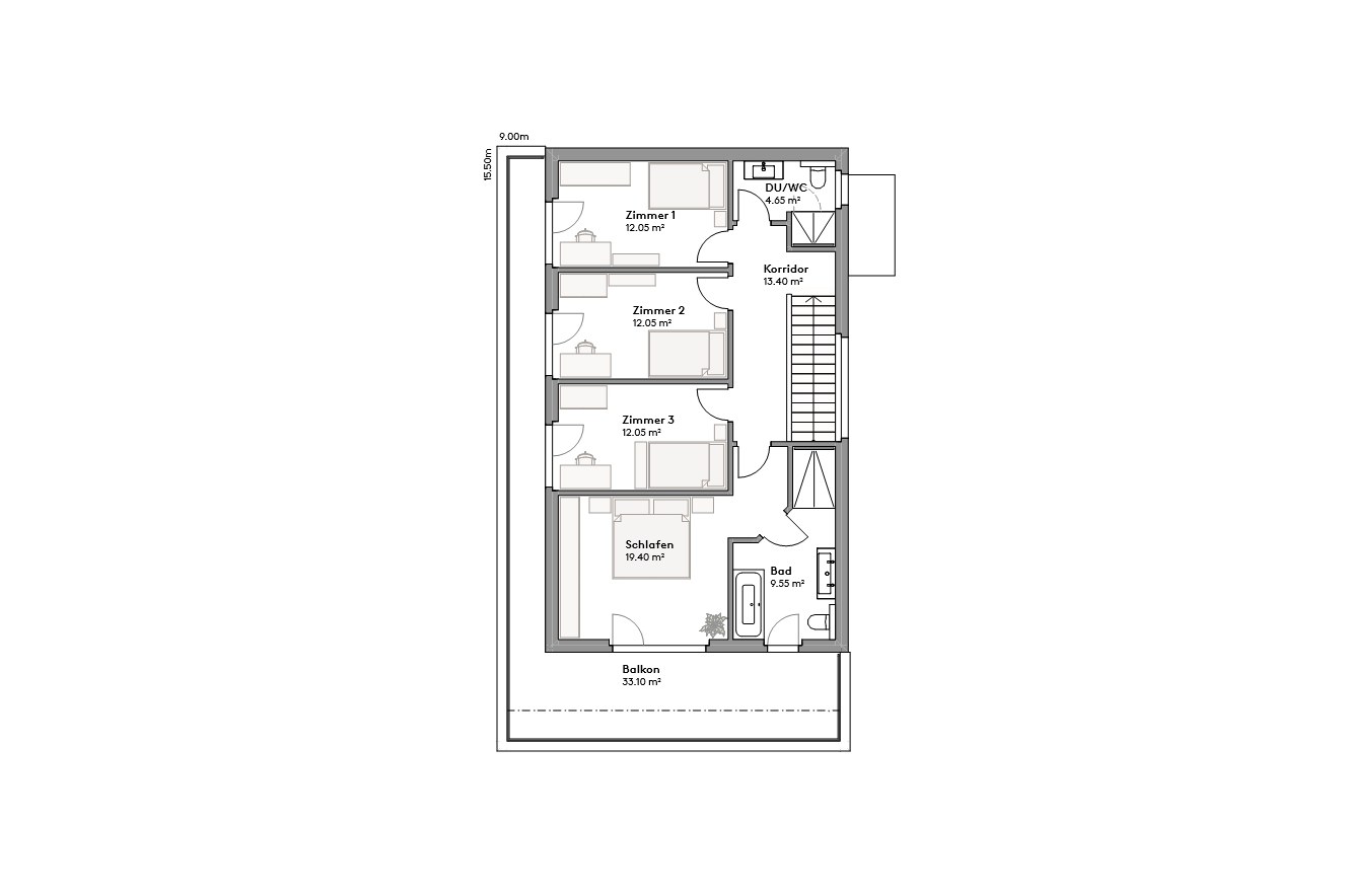
  • 203 m² Wohnfläche
  • 6 ½ Zimmer Einfamilienhaus
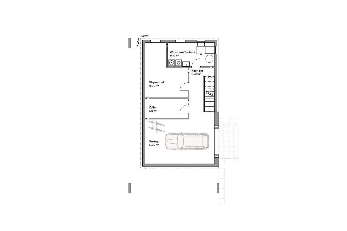
  • Zwei Wohngeschosse und ein Untergeschoss
  • Wohnen, Essen und Küche offen im Loftstil
  • Grosse Küche mit Kochinsel und Vorratsraum
  • Zweiseitig gedeckter Sitzplatz und Veranda
  • Grosse Schlafzimmer mit vorgelagerter Loggia bzw. Terrasse
  • Separate Nasszelle mit Dusche und Toilette

Grundrisse,
die überzeugen