Detail Referenzen

Avalon — Modernes Wohnkonzept

Avalon
Highlights

  • 165 m² Wohnfläche
  • 5 ½ Zimmer Einfamilienhausteile mit verspielter Raumgestaltung
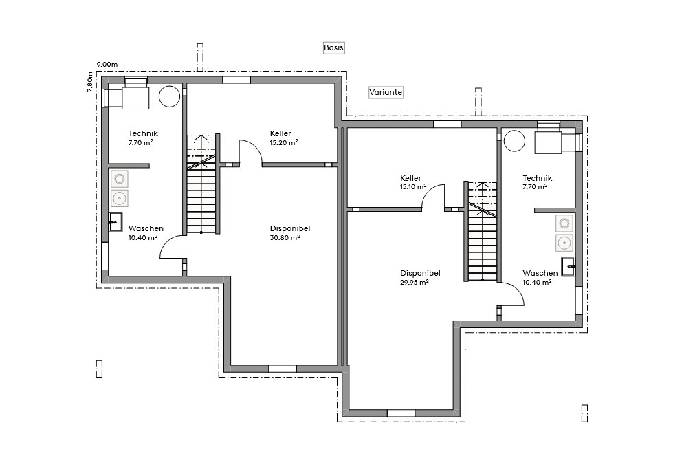
  • Zwei Wohngeschosse und ein Untergeschoss
  • Schalltechnisch optimal getrennte Doppelhaushälften
  • Grosser Disponibel-Raum und Nebenräume im Untergeschoss
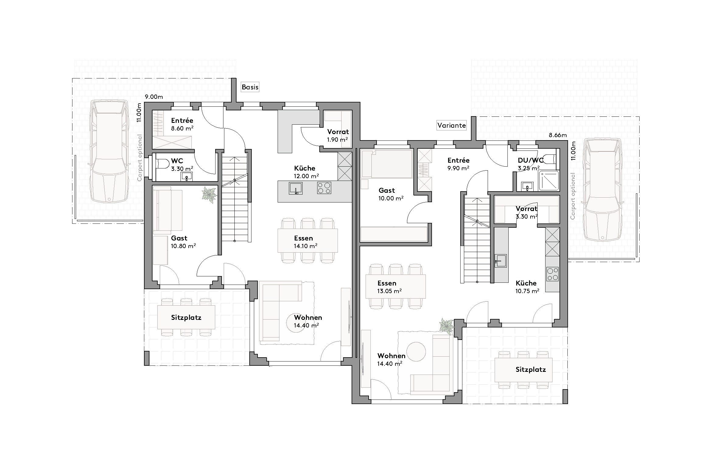
  • Offener Wohn-/Ess-/Küchenbereich mit Kochinsel
  • Grosser, gedeckter Sitzplatz in Gebäudeecke
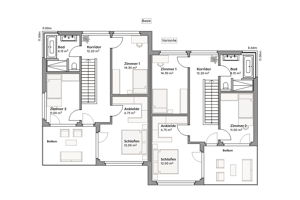
  • Balkon im Obergeschoss
  • Optionen: Carport mit Abstellraum oder Garage im Erdgeschoss, Dusche im WC EG

Grundrisse,
die überzeugen